INDUSTRIEEL
Referentie 002798Nieuw
DC The Bay
Steenen Hoofd 58
Breda, 4825 AK
Neem contact met ons op voor de prijs
- Beschikbaar12.404 m²

Pieter van Santvoort
Consultant - Leasing Advisory | Industrial & Logistics
Makelaar details

Jordy Verhoeven
Head of Leasing Advisory | Industrial & Logistics
Makelaar details
- Object omschrijving
- Energielabel
- Locatie en bereikbaarheid
- Floor plan
- Brochures
- Makelaars
- Neem contact op
Object omschrijving
- GECONTRACTEERD TRANSPORTVERMORGEN VAN 396 kVA PER UNIT + 170 PARKEERPLAATSEN OP EIGEN TERREIN -
DC The Bay is een state-of-the-art warehouse en is gelegen aan het Steenen Hoofd in Breda op bedrijventerrein ‘Krogten’.
DC The Bay biedt alle ruimte voor toekomstbestendige logistiek. Vanwege het gebruik van duurzame materialen, elektrische installaties en zonnepanelen is dit warehouse honderd procent energieneutraal.
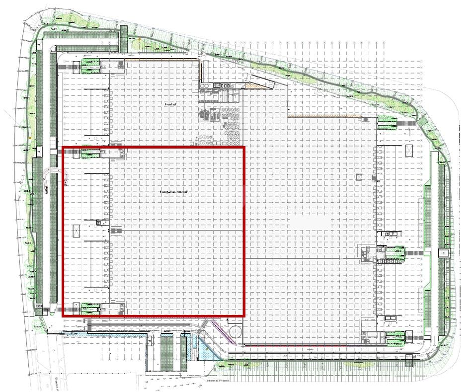
Voor onderverhuur komt ca. 12.404 m² beschikbaar, verdeeld over bedrijfsruimte, mezzanine en kantoorruimte. Deelverhuur van de beschikbare ruimte is mogelijk vanaf circa 3.500m² bedrijfsruimte.
Een deel van de bedrijfsruimte is tevens voorzien van koel- en vriesruimte, in totaal circa 2.700m².
Ruimtes beschikbaar
Energielabel
EPC Vrijgesteld
Locatie en bereikbaarheid
Bedrijventerrein ‘De Krogten’ is gelegen aan de noordzijde van Breda en vormt hiermee het centrum van de West-Brabantse regio met de strategische ligging tussen de Antwerpse en Rotterdamse haven. Dit grote bedrijventerrein huisvest meer dan 400 midden- en klein- alsmede groothandelsbedrijven. Dit zijn voornamelijk bedrijven in de retail, industrie en logistiek alsmede zakelijke dienstverlening. Onder andere VDL, Strukton, Hiram Transport, Dynalogic, Makro, Mammoet Global Services en Hornbach hebben bedrijventerrein ‘De Krogten’ gekozen als vestigingslocatie.
Eigen vervoer
Het warehouse is goed bereikbaar vanwege de op korte afstand gelegen Rijksweg A27 (Breda – Utrecht), de A59 (Breda – Den Bosch), de A16 (Antwerpen – Breda – Rotterdam) en de A58 (Bergen op Zoom – Eindhoven).
Openbaar vervoer
Op circa 15 minuten loopafstand zijn meerdere bushaltes gelegen met frequente verbindingen van en naar het Centraal Station van Breda.
Eigen vervoer
Het warehouse is goed bereikbaar vanwege de op korte afstand gelegen Rijksweg A27 (Breda – Utrecht), de A59 (Breda – Den Bosch), de A16 (Antwerpen – Breda – Rotterdam) en de A58 (Bergen op Zoom – Eindhoven).
Openbaar vervoer
Op circa 15 minuten loopafstand zijn meerdere bushaltes gelegen met frequente verbindingen van en naar het Centraal Station van Breda.
Makelaars

Pieter van Santvoort
Consultant - Leasing Advisory | Industrial & Logistics
Makelaar details

Jordy Verhoeven
Head of Leasing Advisory | Industrial & Logistics
Makelaar details










